SOLART comes within the concept of beauty. As the fact of having some old furniture in bad state and restore them to create a construction or to be able to give them a new functionality as in instance a quite unique installation.
We focused on collecting all these elements that for some sort of reason have been rejected and transform them in unique special pieces. As happens in Art, that objects are raised by their unique treatment and concept.
We raise the urban sites to an Art level, to treat each piece according to a global concept, generating new alternatives that have beautified its initial function.
ELISAVA
Paula Brunet · Anna Eustaquio
2015/16
New concept for Uniqlo Stores.
Retail Design
ELISAVA 2015
FAST FOOD MAISON MARTIN MARGIELA
Trend box. Conceptualization and development about artisanal concept.
+ more information
/ARCHITECTURE COLLAGES
Beautiful buildings and spaces are more than scientific. They are true organisms, spiritually conceived.
PHOTOGRAPHY PERFORMANCE
Workshop december 2014
by Diego Ferrari
Personas que atienden personas
Arrels es una entidad que desde 1987 se dedica a la atención de personas sin hogar de la ciudad de Barcelona.
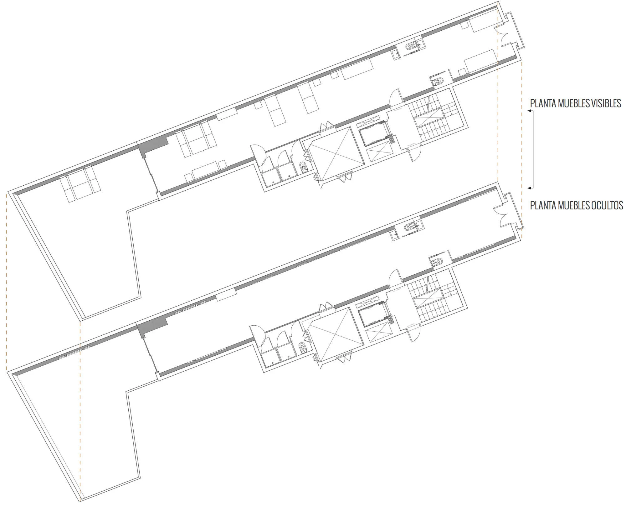
HOME FOR LESS
Cuando llegamos a un lugar tendemos a hacérnoslo nuestro y es por ello que en el proyecto estas personas tendran la oportunidad de hacer suyo el espacio, de ir descubriéndolo a medida que van abriendo cada uno de los muebles y de dejar su huella al igual que en la calle o en cualquier lugar de paso.
El concepto de estar y de no estar es el más importante del proyecto, no solo por la persona si no por el espacio que se creará, capaz de recogerse y desaparecer cuando nuestros ocupantes no están, al igual que lo hacen ellos en la calle diariamente.
#35mm
#35mm
#35mm